AlbaAzul IV


Proyecto habitacional ubicado en Conocoto, Valle de Los Chillos, en la ciudad de Quito. Se desarrolla en un área de 4.000 m2. El conjunto habitacional Albazul IV cuenta con áreas verdes, sala comunal, guardianía y estacionamientos. Las casas tienen un metraje de 67 m2, dos plantas y cuentan con parqueadero. La totalidad de viviendas proyectadas es de 40.


Datos Técnicos

Ubicación: Quito, Pichincha Lote: 4.000 m2 Proyecto: 40 viviendas Casa Tipo: 67 m2 (2pisos)

Sala comunal Guardiania Espacios verdes Estacionamientos descubiertos


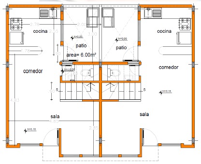
Casa de 67 M2

Planta Baja
sala, comedor, estudio, cocina, patio

Planta Alta
tres dormitorios,baño completo, hall



Acabados

Cocina

Comedor/Cocina


Comedor/Cocina

sala


Cuarto

baño