Altos de Caranqui


Proyecto habitacional ubicado en la ciudad de Ibarra, provincia de Imbabura. Se desarrolla en un lote de 13.576 m2. El conjunto habitacional Altos de Caranqui cuenta con áreas verdes, sala comunal, estacionamiento y guardianía. Los diseños de las casas de dos plantas se presentan en 2 metrajes: 72 m2 y 84 m2. Todas cuentan con un parqueadero. La totalidad de viviendas proyectadas es de 110.




Datos Técnicos

Ubicación: Ibarra, Imbabura Lote: 13.576 m2 Proyecto: 110 viviendas Casa Tipo: 72 m2 Casa Tipo: 84 m2

Sala comunal Guardiania Espacios verdes Estacionamientos descubiertos


Casa Tipo 72 M2

Planta Baja
sala, comedor, cocina, baño social, patio de servicio

Planta Alta
tres dormitorios, baño completo


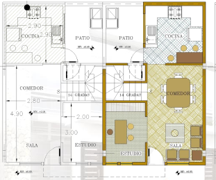
Casa Tipo 84 M2

Planta Baja
sala, comedor, cocina, baño social, patio de servicio

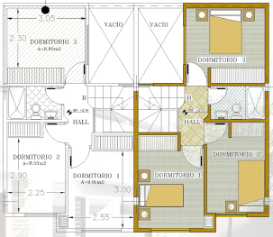
Planta Alta
tres dormitorios, baño completo


Acabados

Cocina

Comedor/Cocina


Comedor/Cocina

sala


Cuarto

baño