Ferroviaria


Proyecto habitacional ubicado en la Avenida Simón Bolívar, junto al Fuerte Militar Epiclachima, al sur de la ciudad de Quito. Se desarrolla en un lote de 19.200 m2, repartidos en 3 etapas. El conjunto habitacional Ferroviaria cuenta con áreas verdes, guardianía y estacionamientos. Las casas tienen un metraje de 72 m2, dos plantas y todas cuentan con un parqueadero. La totalidad de viviendas proyectadas es de 164.


Datos Técnicos

Ubicación: Quito, Pichincha Lote: 19,200 m2 Proyecto: 164 viviendas Casa Tipo: 72 m2

Sala comunal Guardiania Espacios verdes Estacionamientos descubiertos


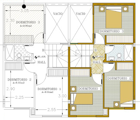
Casa Tipo 72 M2

Planta Baja
sala, comedor, estudio, cocina, patio

Planta Alta
tres dormitorios,baño completo, hall



Acabados

Cocina

Comedor/Cocina


Comedor/Cocina

sala


Cuarto

baño