Garrochal


Es un proyecto habitacional que se está desarrollando en el sector de Guamaní, al sur de la ciudad de Quito. Ocupa un lote de 29.200 m2, repartidos en 4 tramos, de los cuales tres ya están construidos. El conjunto El Garrochal cuenta con sala comunal, áreas verdes, estacionamiento y guardianía. Adicionalmente, se encuentra a la altura de la estación del alimentador del Corredor Oriental de la Ecovía. Las casas tienen un metraje de 97 m2, un diseño funcional de tres pisos y todas cuentan con un parqueadero. La totalidad de viviendas proyectadas es de 309.


Datos Técnicos

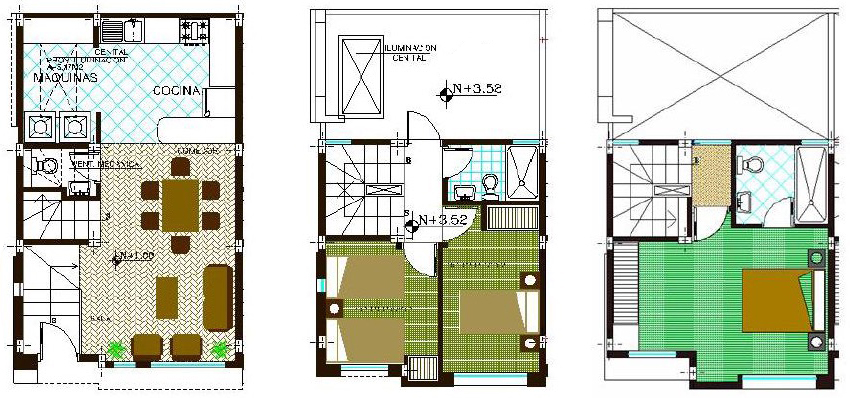
Ubicación: Quito, Pichincha Lote: 29,200 m2 Proyecto: 309 viviendas Casa Tipo: 97 m2 (3 pisos)

Sala comunal Guardiania Espacios verdes Estacionamientos descubiertos


Casa de 97 M2





Acabados

Cocina

Comedor/Cocina


Comedor/Cocina

sala


Cuarto

baño