La Lorena


Proyecto habitacional ubicado en la ciudad de Santo Domingo, provincia de Santo Domingo de los Tsachilas. Se desarrolla en un área de 5,7 hectáreas. Cuenta con áreas verdes, sala comunal, estacionamiento y guardianía. Existe disponibilidad de casas de dos plantas en 2 metrajes: 72 m2 y 94 m2. Todas cuentan con un parqueadero. La totalidad de viviendas proyectadas es de 487.



Datos Técnicos

Ubicación: Santo Domingo de los Tsáchilas Lote: 5,7 has Proyecto: 487 viviendas Casa Tipo B: 72 m2 (2pisos) Casa Tipo C: 94 m2 (3 pisos)

Sala comunal Guardiania Espacios verdes Estacionamientos descubiertos


Casa Tipo 72 M2


Planta Baja
sala, comedor, cocina, baño social, patio de servicio

Planta Alta
tres dormitorios, baño completo


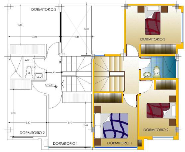
Casa Tipo 92 M2

Planta Alta 1
dos dormitorios, baño completo, terraza

Planta Alta 2
dormitorio master, baño completo

Planta Baja
sala comedor, cocina, patio


Acabados

Cocina

Comedor/Cocina


Comedor/Cocina

sala


Cuarto

baño